3 bedroom townhouse

427 500€

  • 5
  • 3
  • 3
  • Usable: 133m2
  • Floor: 236m2
  • C.E.: D
  • Year: 2007
  • Ref: 62673-MCCP62545

Location

Lisboa, Mafra, Milharado, Venda do Pinheiro

VR Tour

Description

Townhouse for sale in Condomínio da Cerca - Venda do Pinheiro

This elegant 3-storey townhouse, located in the exclusive Condomínio da Cerca, in Venda do Pinheiro, is perfect for those looking for a combination of comfort, privacy and a family lifestyle.

Main Features:
-3 bedrooms with built-in closets - Includes a large suite on the 1st floor, ideal for ensuring privacy and comfort .

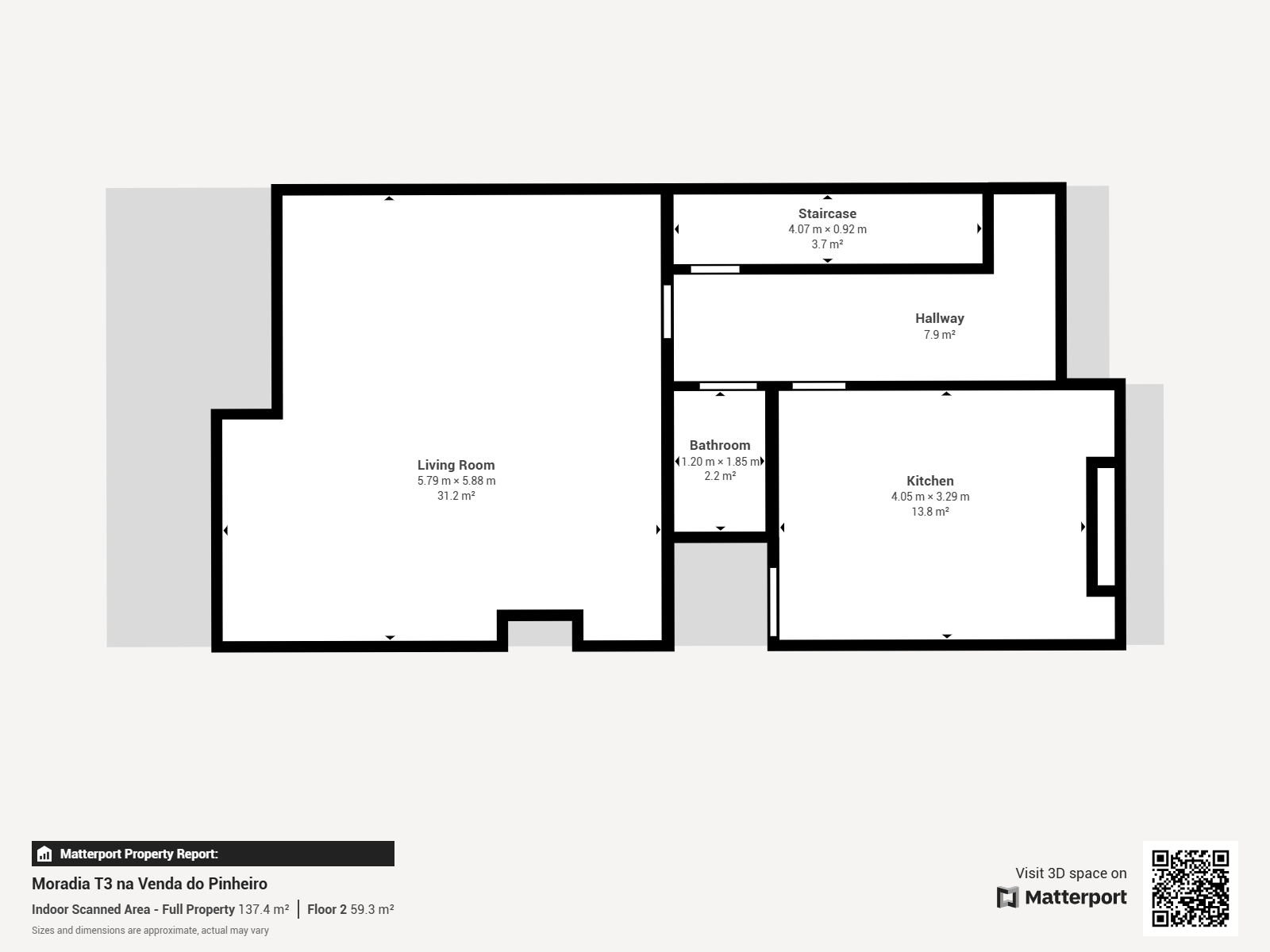
- Social Area on the Middle Floor - The modern, fully equipped kitchen with pantry is practical and functional. The spacious living room gives direct access to a private outdoor area, perfect for relaxing or barbecuing under the shed.

-Garage and Storage on the Lower Floor - A closed garage box with capacity for up to 4 cars, plus a practical storage area, offers plenty of space for parking and storage.

-Private Outside Space - A cozy, partially covered terrace, ideal for leisure time and al fresco dining.

Conveniences of the Condominium:
-Pool and Playground - Residents of Condomínio da Cerca enjoy a private pool and playground, guaranteeing leisure and safety for the whole family.
-Strategic Location - Just 2 minutes from the freeway entrance, the villa combines the tranquillity of a gated community with the convenience of quick access to the main transport routes.

This villa is a unique opportunity for those looking for a home where comfort, leisure and quality of life come together. Schedule your visit and come and discover your new home!

Attributes

  • Access for disabled
  • Heating
  • Condominium
  • Kitchen / Kitchenette
  • Double glazed windows
  • Dishwasher
  • Terrace
  • Suitable for events
  • Equipped Kitchen
  • Pets Allowed
  • Storage area
  • Parking Included
  • Fireplace
  • Pool
  • Garage (Box)
  • Outdoor parking
  • Barbecue grill
  • Security Door
  • Countryside/Sierra View
  • Piped Water
  • Fire Detectors
  • Sanitation
  • Thermal Insulation
  • Quiet Place
  • Suite
  • Pantry
  • Good Solar Exposure
  • Built-in wardrobe

Divisions

Blueprints

Floor name: House Floor 0

Division Area Note
Room
WC
Kitchen
Entrance Hall
Terrace

Floor name: House Floor 1

Division Area Note
Suite
Bedroom
Bedroom
WC
Bedroom Hall

Floor name: garagem

Division Area Note
Interior Bedroom
Box